

























Apartament spatios, situat la etajul 2 al unei vile deosebite, situata intro zona de mare interes a Bucurestiului, Dacia-Eminescu (Strada Alexandru Philippide, nr.4), extraordinar de bine compartimentat, asteapta sa fie renovat si amenajat conform designului si utilitatii necesare, viitorilor proprietari.
Apartamentul este compus din:
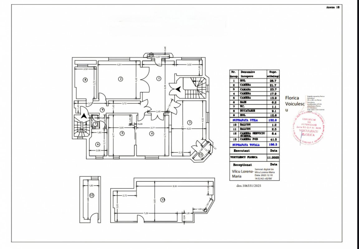
- 5 camere (3 dormitoare)
- Hol
- Bucatarie
- Baie, grup sanitar
- Vestibul
- Culoar
- 2 balcoane
- terasa acoperita
Dispunerea este intro compartimentare circulara, cu spatii foarte largi si aerisite.
Apartamentul are o suprafata utila de 132,9 mpu, 2 balcoane 1, 2 si 2,3 mpu, la care se adauga, o boxa (camera de serviciu la subsol), de 8,4 mp si o camera in pod, in suprafata de 41,5 mpu (suprafata totala 186.3 mpu) .
Tot in proprietate se afla o suprafata de 48, 47m teren, situat sub constructie, din totalul terenului pe care s a edificat imobilul (403mp, 208,6mp fiind teren liber), precum si cota parte din dependintele si spatiile comune.
Apartamentul se vinde nerenovat, asteptandu si noii proprietari sa amenajeze,utilizand perfect spatiile ample si tavanele inalte ale proprietatii.
Extraodinar de elegant si cu stil, acest apartament se afla intro vila superba, datand din perioada interbelica, extrem de valoroasa, monument istoric.
Pentru mai multe detalii si stabilirea unei vizionari, nu ezitati sa ma contactati.
Multumesc,