Amalia Tudor utilizează fişiere de tip cookie pentru a personaliza și îmbunătăți experiența ta pe Website-ul nostru. Înainte de a continua navigarea pe Website-ul nostru te rugăm să aloci timpul necesar pentru a citi și înțelege conținutul Politicii de Cookie. Prin continuarea navigării pe Website-ul nostru confirmi acceptarea utilizării fişierelor de tip cookie conform Politicii de Cookie.
Aceasta proprietate a fost deja inchiriata !

Centrul Vechi, spațiu comercial 34mp Str. Smârdan, comision 0%!

Bucuresti, Centrul Istoric

2.200€
ID: AT12335 318 Reprezentare exclusiva inchiriat
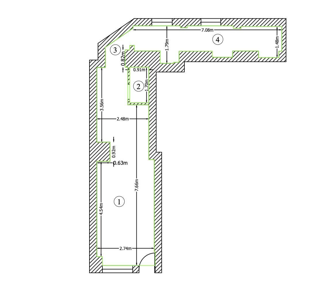
  • Nr. camere:1
  • S. utila:34.00 mp
  • S. construita:34.00 mp
  • S. vitrina:2.74 m
  • Front stradal:2.74 m
  • Comp.:Compartimentat
  • Nr. bai:2
  • An renovare:2023
  • Structura rezistenta:Caramida
  • Tip imobil:Casa/Vila
  • Regim inaltime:P+2
  • Avans:2200
  • Garantie:2200

La parterul unei clădiri frumos renovate, situată pe strada Smărdan, este disponibil la închiriere un spațiu comercial compus din camera principală de aproximativ 20mp, bucătărie și 2 grupuri sanitare.
În jur sunt numeroase terase, restaurante și cafenele, iar zona pietonală este plină mereu de turiști și oameni care au ieșit la plimbare și cumpărături.

Spațiul este într-o stare bună, pardoseala este din granit negru, ferestrele au fost schimbate.

Este pretabil pentru o firmă care își dorește mai multă vizibilitate sau pentru un mic magazin.

Pentru detalii suplimentare, vă rog, să mă contactați!
Proprietatea este reprezentată exclusiv de TUDOR City.
Comisionul este 0% pentru chiriaș!

Utilitati
  • Utilitati generale: Curent, Apa, Canalizare, CATV
  • Sistem incalzire: Calorifere
Finisaje
  • Pereti: Vopsea lavabila, Faianta, Tapet
  • Podele: Gresie, Mocheta
  • Stare: Finisat
  • Ferestre: Aluminiu, Termopan
  • Iluminat: Spoturi, Aplice, Exterior cladire, Lumina naturala
Dotari
  • Contorizare: Apometre
  • Mobilat: Nemobilat
  • Sist. electric: Control electric individual

Amalia Tudor

Contacteaza-ma

0730252252
Vezi telefon Chat