
















Pe Bd. Unirii - Fantani, una din zonele capitalei in care apar foarte rar proprietati, este disponibil la vanzare un apartament luminos si primitor de 2 camere. Este situat intre Piata Unirii si Palatul Parlamentului intr-unul din cele mai sigure imobile din Bucuresti, blocurile monolit din zona Palatului Parlamentului, finalizate dupa 1990.
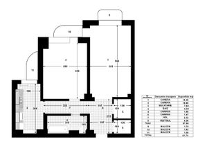
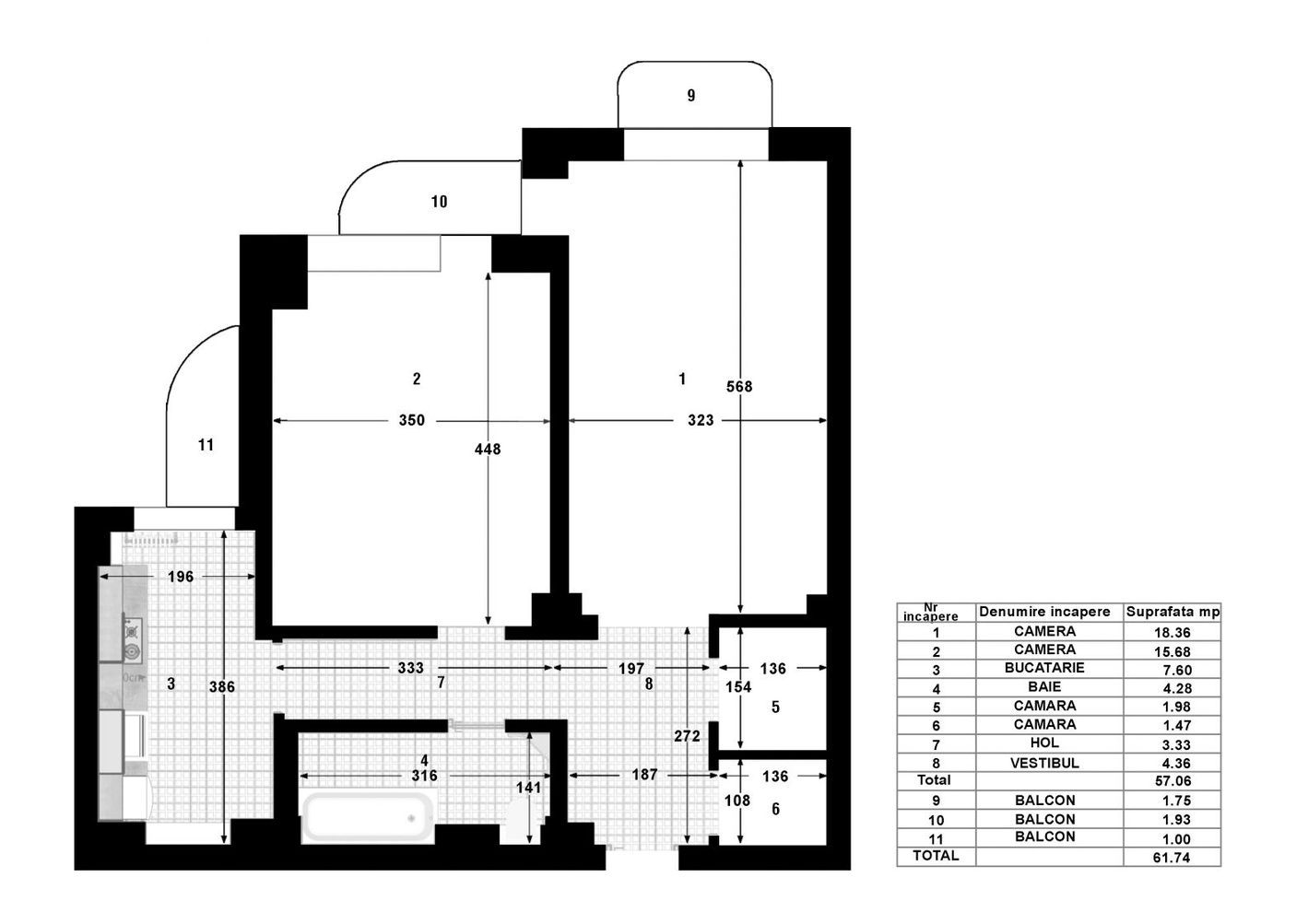
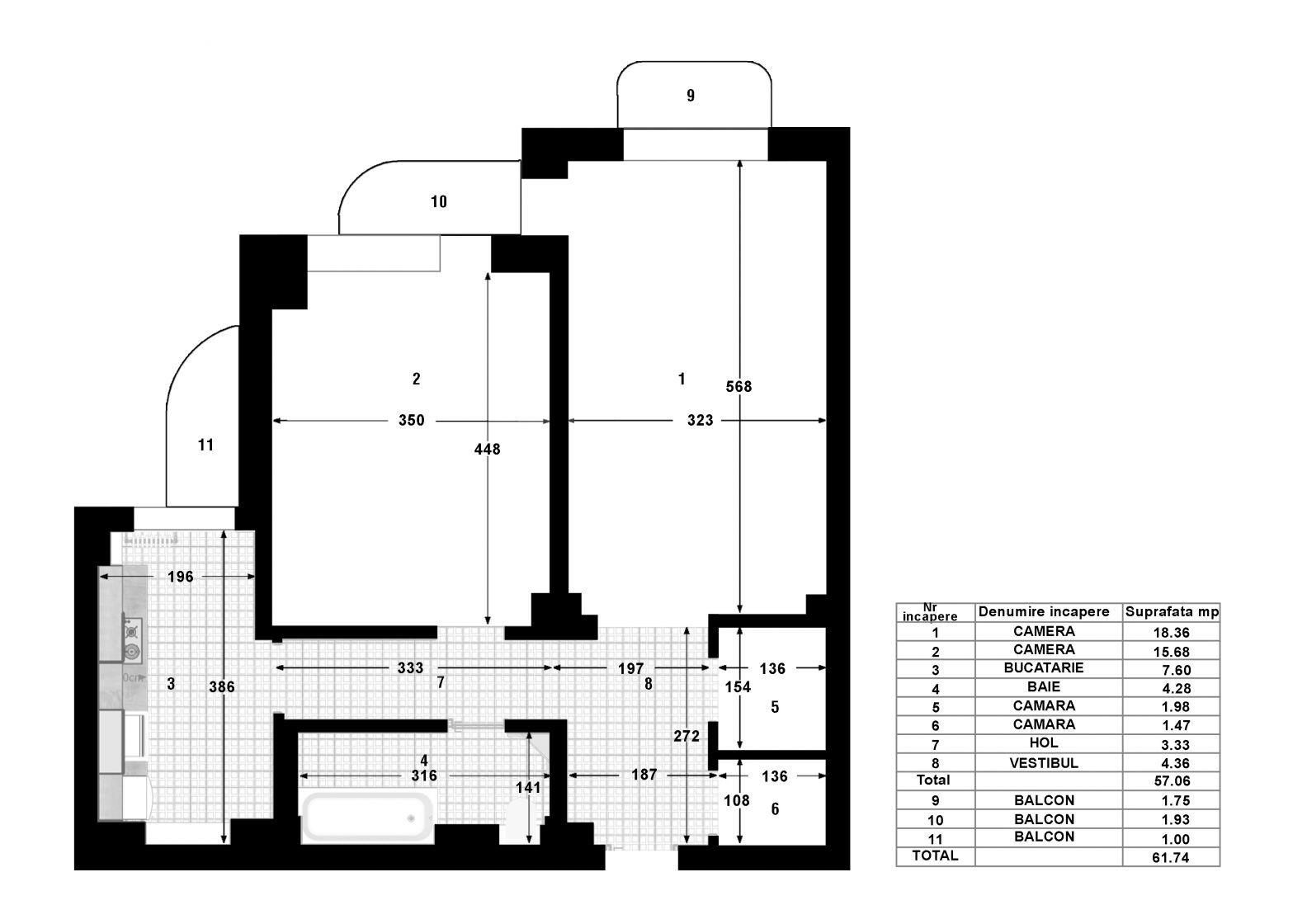
Apartamentul, in suprafata utila de 58mp si utila totala de 62mp, este decomandat si este compus din 2 camere, baie cu aerisire directa, bucatarie, doua spatii de depozitare si trei balcoane. Holul de la intrarea in apartament este spatios si are atasate doua spatii de depozitare incapatoare. Compartimentarea practica, amenajarea moderna fac din acest apartament o locuinta primitoare si sigura in centrul Capitalei!
Datorita vederii spre spate, catre Hanul Berarilor, unde circulatia este mult mai redusa, apartamentul beneficiaza de liniste. Atat bucataria cat si dormitorul si living-ul au iesire pe balcon. Scara blocului este bine intretinuta si beneficiaza de portar.
La cateva minute se afla Parcul Izvor, statia de metrou Unirii sau Izvor, centrul comercial Unirii si numeroase restaurante in Centrul Vechi.
Bd. Unirii se remarca prin trotuare largi si elegante cu spatii verzi, mobilier urban si fantani arteziene.
Pentru programarea unei vizionari, va rog, sa ma contactati!
Proprietatea este reprezentata exclusiv de RENET Real Estate Network.